RWTH Aachen University
Integriertes Projekt Architektur und Konstruktion Lecturer: Prof. Dipl.-Ing. Hartwig Schneider;Dipl.-Ing. Tobias Schell; Prof. Dr.-Ing.Martin Trautz
Lehr- und Forschungsgebiet Baukonstruktion; Gebäudetechnologie; Tragwerkslehre
Integriertes Projekt Architektur und Konstruktion Lecturer: Prof. Dipl.-Ing. Hartwig Schneider;Dipl.-Ing. Tobias Schell; Prof. Dr.-Ing.Martin Trautz
Lehr- und Forschungsgebiet Baukonstruktion; Gebäudetechnologie; Tragwerkslehre
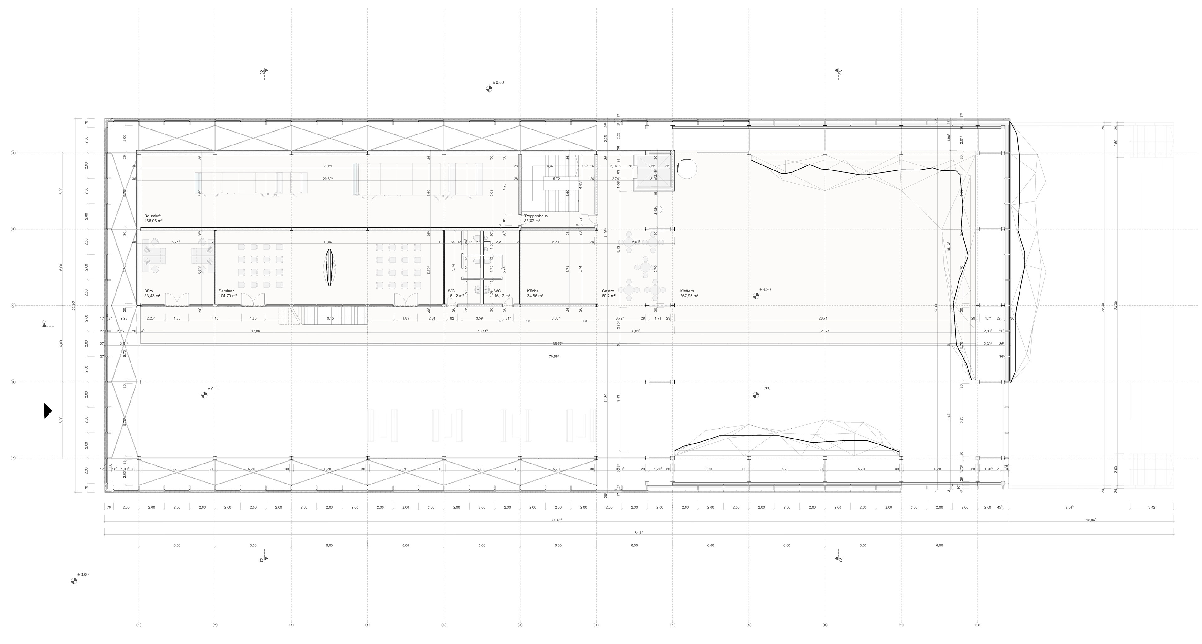
In den letzten Jahren hat die Nachfrage nach Kletterorten stetig zugenommen, jedoch ist das vorhandene Angebot im Bereich des Klettersports bisher nicht entsprechend darauf ausgelegt. Kletterer suchen nach neuen und spannenden Herausforderungen und möchten ihr Können auf immer höheren Niveaus testen. Deshalb soll im östlichen Stadtteil Aachens eine neue Kletterhalle neben dem Ludwig Forum an der Jülicher Straße entstehen, die die steigende Nachfrage deckt und eine willkommene Abwechslung für Klettersportler*innen bietet.Die geplante Kletterhalle wird ein breites Spektrum an Klettermöglichkeiten bieten, darunter Vorstiegs- bzw. Top-Rope-Klettern sowie Bouldern in einem Gebäude. Die Halle wird als Gesamtobjekt geplant, um die Anforderungen an das Tragwerk, die Hülle, den Ausbau und die Nutzung zu erfüllen. Dabei müssen gewisse Vorschriften für die Planung der Kletterhalle eingehalten werden.
Eine der wichtigsten Anforderungen ist die Größe des Kletterbereichs, der mindestens 500 Quadratmeter betragen muss. Zusätzlich müssen die Wände für ein angemessenes Klettererlebnis eine Mindesthöhe von 16 Metern haben. Der Boulderbereich wird mindestens 250 Quadratmeter umfassen und dabei eine Mindesthöhe von 5 Metern haben.
Da die Kletterhalle als Gesamtkomplex funktionieren muss, müssen ergänzend zu den Kletterflächen auch Sanitärräume, ein Foyer als Empfangsbereich, Gastronomie sowie Räume für die technische Gebäudeausrüstung angeordnet werden.
Erdgeschoss
Obergeschoss
Die Planung der Kletterhalle wurde von einer 6er Gruppe, bestehend aus Studierenden der RWTH Aachen, bearbeitet. Die Gruppe hat drei Monate zusammengearbeitet, um ein detailliertes Konzept zu erstellen und ihre Ergebnisse in Visualisierungen und Darstellungen zusammengefasst. Die neue Kletterhalle wird den Bedürfnissen von Klettersportler*innen in Aachen gerecht und ein neues Highlight in der Kletterwelt der Region bieten.
Ziel dieses Projektes war es, den Studierenden ein praxisnahes Verständnis für die verschiedenen Anforderungen, Abhängigkeiten und Querverbindungen zu vermitteln, die bei der Planung eines Gebäudes berücksichtigt werden müssen. Durch die Integration der Lehrinhalte in den Modulen Gebäudetechnologie I, Tragwerklehre II und Baukonstruktion II und die Durchführung einer interdisziplinären Projektarbeit sollten die Studierenden lernen, fachübergreifende Zusammenhänge herzustellen und Möglichkeiten des Abwägens zwischen den verschiedenen zu berücksichtigenden Aspekten zu üben.
Fassadenschnitt Geschlossen
Fassadenschnitt Offen
Gruppe: Theresa Brandt, Annemarie Klein, Zisen Zhang, Esther Ruholl, Antonia Gassner, Jonathan Wahl